Home-Service
Leistungen Planungen
Entwurf und Bauantra
Beratung & Planung
Leistungen Tragwerk
Tragwerksplanung
Bauphysik
Ausführungsplanung
Einzelwohnhäuser
Mehrfamilienhäuser
Gewerbebauten
Bauen im Bestand
Impressum

Wir erbringen die Leistungen der einzelnen Planungsphasen gemäß HOAI, von der Grundlagenermittlung über die Genehmigungs- und Ausführungsplanung bis hin zur Objektbetreuung und Dokumentation. Darüber hinaus übernehmen wir auch beratende und gutachterliche Aufgaben.

Unser Engagement gilt dabei neben der Realisierung von Neubauprojekten insbesondere auch dem Bauen im Bestand, von einfachen Wand- oder Deckendurch- brüchen über Dachgeschoßausbauten bis hin zu groß angelegten Umbaumaßnahmen (z.B. infolge geplanter Nutzungsänderungen) mit weit reichenden Eingriffen in bestehende Tragstrukturen.

Selbstverständlich stehen wir Ihnen auch gerne beratend zur Seite, wenn Sie lediglich vorhaben, ein Wasserbett, ein Aquarium, ein schweres Regal oder etwa einen Tresor in Ihren Räumen aufzustellen.

Unser Büro ist mit neuesten Tragwerksplanung-Software-Programmen ausgestattet. Hierzu gehören Berechnungsprogramme für die Bemessung von Dachkonstruktionen, Geschoßdecken aus Stahlbeton- oder Holzkonstruktion, sowie aller weiteren tragenden Bauteile aus Stahlbeton, Baustahl, Holz, Mauerwerk etc.Die Tragwerksplanung für Stahlbetondecken und Stahlbetonsohlplatten erfolgt nach der Methode der der Finiten Elemente, welches als wirtschaftliches Berechnungsverfahren bekannt ist. Bei diesem Berechnungsverfahren kann auf zusätzliche Stahlträger im Deckenbereich verzichtet werden. Die Positionspläne, Schalpläne und Bewehrungspläne werden als CAD-Zeichnungen erstellt. Durch Einsatz modernster EDV-Technik können Ihre Entwürfe anhand von dreidimensionalen Darstellungen und Animationen realitätsnah vorgestellt werden. So können Sie bereits im Vorfeld erkennen, wie Ihr Bauvorhaben anschließend aussehen wird.

Wir sind ein Ingenieurteam, das sparsam und kostenbewusst arbeitet. Wir sehen es als unsere Aufgabe, zu angemessenen Kosten zu bauen, um mit einem Minimum an Aufwand für die Nutzer eine maximale Lebensqualität zu erreichen.

Zu unserer Philosophie gehört der enge Austausch mit dem Auftraggeber.
Ostermann Ing-Gesellschaft mbH
19.01.2011


Die Tragwerksplanung für Stahlbetondecken und Stahlbetonsohlplatten erfolgt nach der Methode der der Finiten Elemente, welches als wirtschaftliches Berechnungsverfahren bekannt ist. Bei diesem Berechnungsverfahren kann auf zusätzliche Stahlträger im Deckenbereich verzichtet werden. Die Stahlbetondecken werden komplett aus der CAD-Grundrissen berechnet. Die Lasteingaben für ständige - und Verkehrlasten erfolgt ebensfalls im CAD-Grundriss.
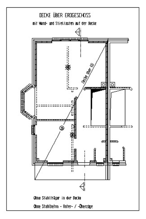
Im folgenden wird ein Beispiel anhand einer Doppelhaushälfte gezeigt:
Positionsplan Decke über Erdgeschoss
Als Beispiel für die Berechnung von Stahlbetondecken wird hier die Decke über dem Erdgeschoss einer Doppelhaushälfte dargestellt.


Auf deckengleiche Stahlträger bzw. zusätzliche Unterzüge zur Begrenzung der Deckenschlankheit kann hier verzichtet werden.
Die Verformung der Deckenplatte wird allein durch die Deckenstärke und der eingelegten Deckenbewehrung begrenzt.
Anhand des Gitternetzes kann die Verformung der Decke für jeden Deckenpunkt bestimmt werden.

Ostermann Ingenieurgesellschaft mbH | office@ostermann-ing.de